Eladó lakás / téglalakás

  • Kód: #62004
  • Hely: Budapest , V.
  • Típus: lakás
  • Ár: 255 000 000 HUF
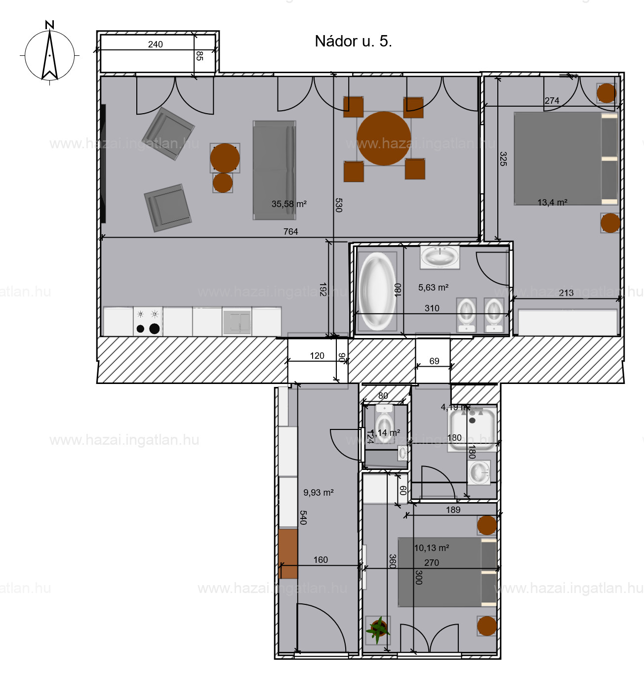
  • Méret: 80 m2
  • Szoba: 3
  • Állapot: extra állapotú
  • Komfort: luxus
  • Fűtés: házközponti
  • Fürdő és wc: külön és egyben is
  • Lift: Van
  • Erkély: -
  • Tájolás: -
  • Kilátás: utcára néző
  • Parkolás: utcán fizetős
  • Belmagasság: 3m-nél magasabb
  • Épület szint: 3
  • Emelet: 3
  • Légkondicionáló: Van
  • Panelprogram: -

Az ingatlanról

/62004/

Belvárosi elegancia a Lánchíd közelében – Nádor utcai erkélyes luxuslakás eladó

Budapest szívében, az V. kerületi Nádor utcában, pár perc sétára a Lánchídtól kínálunk eladásra egy 80 m²-es, nappali + 2 hálószobás, duplakomfortos, erkélyes, második emeleti luxuslakást. Az ingatlan prémium minőségű, teljes körű felújításon esett át, a legjobb minőségű anyagok felhasználásával – minden részlete az eleganciát és az igényességet tükrözi.
Az amerikai konyhás nappali és a fő hálószoba a csendes Mérleg utcára néz, az erkélyről pedig kellemes városi panoráma nyílik. A második hálószoba a nyugodt belső udvar felé tájolt. Mindkét hálóhoz saját fürdőszoba tartozik:
* a fő hálóhoz elegáns, káddal, WC-vel és bidével felszerelt,
* a második hálóhoz pedig modern zuhanyzós fürdő kapcsolódik.
A lakásban külön vendég WC is található.
Főbb jellemzők:
* Teljes bútorzattal és gépesítéssel együtt eladó – azonnal költözhető
* Új fa nyílászárók, cserélt víz- és villanyvezetékek
* Designer csillárok, beépített szekrények, minőségi szaniterek, prémium burkolatok
* 4 méteres belmagasság, chevron mintás tölgyfa parketta
* Teljesen gépesített AEG konyha: mosogatógép, hűtő fagyasztóval, sütő, főzőlap, páraelszívó, mosógép
* 3 db légkondicionáló, automata sötétítők
* Házközponti fűtés
* Közös költség (víz nélkül): 33.104 Ft/hó
Az ingatlan egy impozáns, Hild József által tervezett, az 1800-as években épült, patinás társasházban található, amely több felújításon átesett, így megőrizte eredeti szépségét. A háznak két bejárata van – Nádor utca 5. és Mérleg utca 10.felől –, a lift a Mérleg utcai bejáratnál található.
Ez a lakás tökéletes választás mindazoknak, akik a belvárosi luxust, kényelmet és történelmi eleganciát keresik, akár saját otthonként, akár prémium befektetésként.
Irányár: 255.000.000 Ft


.


Jogosultságok és terhek

Per és tehermentes


Vélemények a munkatársról

Kapcsolat felvétel

Wind ingatlan

Izik Barbara

Értékesítő

windingatlan5@gmail.com

+36-70-428-87-74

További ingatlanok

Részletek

Bútorozott

  • 121 m2
  • 3
  • 33 900 000 HUF
Részletek

Eladó

  • 58 m2
  • 2
  • 139 990 000 HUF
Részletek

Bútorozott

  • 89 m2
  • 3
  • 249 900 000 HUF